Hoffnung für Menschen in Mbano

Was ist unser nächstes Ziel?

Unser Ziel ist es, den Menschen in Mbano/Nigeria Hoffnung und Zukunft geben. Genau genommen in den Dörfern rund herum um die nahegelegenen Gemeinden von Isiala Mbano in der Pfarrei St. Antony Umunkwo. Es herschen dort bitterste Armut und Hunger – so wie überall. Dank Priester Reginald, der seit fünf Jahren in unserer Pfarreiengemeinschaft tätig ist, haben wir hautnah erfahren, was es heißt, arm zu sein, Hunger zu erleiden, keinen Zugang zu sauberem Wasser und zu Bildung zu haben. Er setzt sich nicht nur mit voller Kraft in unserer Gemeinde ein, sondern gibt auch sein letztes Hemd, um die Not in seiner Heimat zu lindern. Einer allein ist machtlos – zusammen können wir etwas bewirken. 

Unser nächstes Ziel ist durch Bildung und damit mit dem Bau einer Schule mit Kindergarten die Armut und den Hunger in ihrem Keim zu ersticken. Nur durch Bildung kann man etwas verändern.

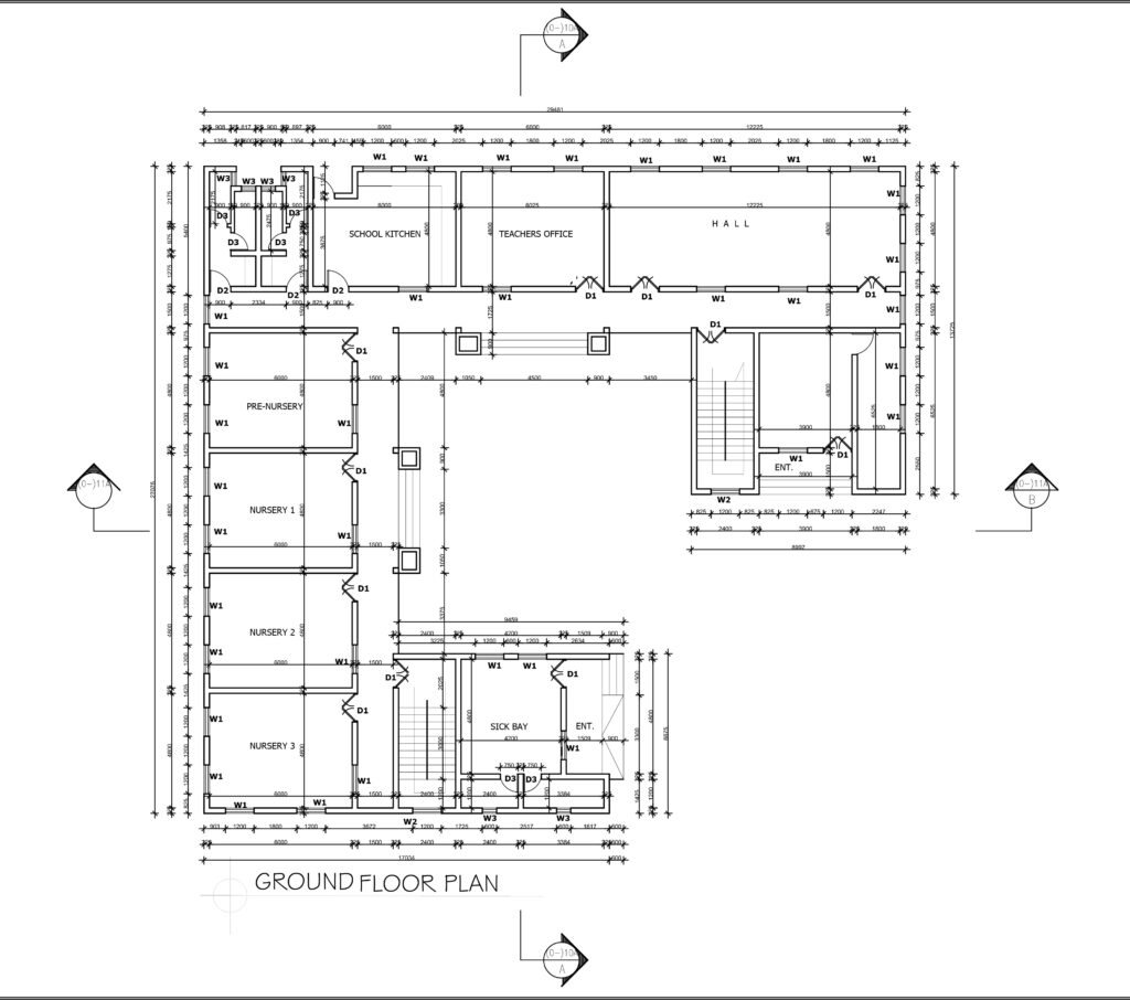
Der Bauplan für das zweistöckige Haus liegt uns bereits vor (Oktober 2025). Jetzt heißt es, die Finanzierung auf die Beine zu stellen, damit wir bald mit dem Bau beginnen können. Wir haben eine Bausumme von rund 80.000 EUR. Das muss doch zu schaffen sein!

Später werden Nonnen die Schule leiten. Diese Nonnen werden auch oben in der Schule in einem kleinen Bereich wohnen. Wenn das komplette Konzept steht, werden wir das hier natürlich veröffentlichen.

An der Stelle ein GANZ großes DANKESCHÖN an unsere bisherigen Spender!
Jetzt brauchen wir mehr helfende und gebende Hände, um schneller
ans Ziel zu kommen.

Nach oben scrollen